Если вы ищете надежное решение для противопожарной защиты своего объекта, обратите внимание на блочные насосные станции. Эти устройства обеспечивают быструю подачу воды в случае возгорания, что делает их незаменимыми в борьбе с огнем. В этом руководстве мы рассмотрим все аспекты блочных насосных станций для пожаротушения, чтобы вы могли сделать обоснованный выбор при их выборе.
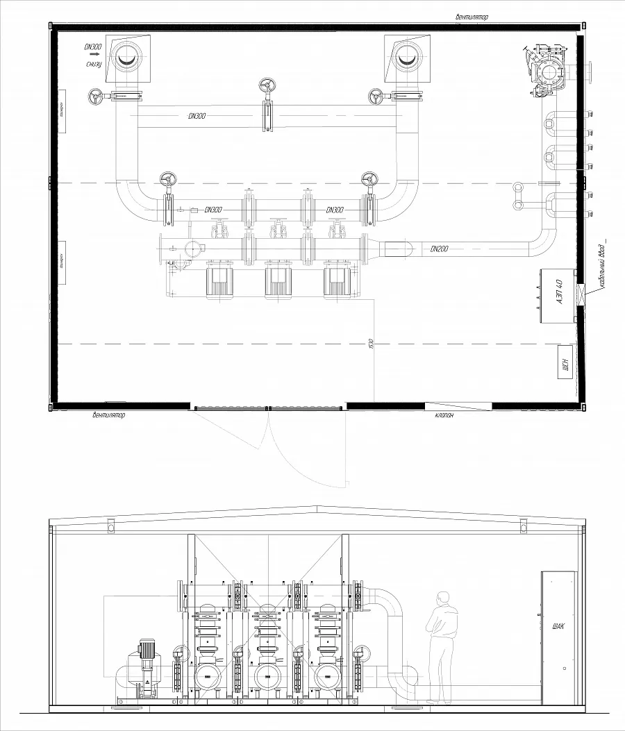
Прежде всего, давайте разберемся, что такое блочная насосная станция. Это автономное устройство, которое состоит из насоса, электрического двигателя, блока управления и других необходимых компонентов. Все эти элементы собраны в одном корпусе, что облегчает установку и обслуживание станции. Блочные насосные станции могут работать как самостоятельно, так и в составе более сложных систем пожаротушения.
Одним из главных преимуществ блочных насосных станций является их высокая производительность. Они способны обеспечивать большие расходы воды за короткое время, что крайне важно для эффективного тушения пожара. Кроме того, эти станции отличаются надежностью и долговечностью. Они могут работать в различных условиях, включая низкие и высокие температуры, и выдерживать значительные нагрузки.
При выборе блочной насосной станции для пожаротушения важно учитывать несколько факторов. Во-первых, обратите внимание на производительность станции. Она должна соответствовать потребностям вашего объекта и обеспечивать достаточное давление и расход воды. Во-вторых, убедитесь, что станция имеет необходимые сертификаты и соответствует требованиям пожарной безопасности. В-третьих, оцените качество изготовления и материалы, из которых изготовлена станция. Это гарантирует долгий срок службы и надежную работу в экстремальных условиях.
Немаловажное значение имеет и обслуживание блочных насосных станций. Регулярная проверка и техническое обслуживание помогут поддерживать станцию в рабочем состоянии и продлить ее срок службы. Также важно следить за уровнем воды в резервуаре и своевременно доливать ее, если это необходимо.

Выбор и установка блочной насосной станции
Далее, обратите внимание на тип насоса. Центробежные насосы обычно используются в системах пожаротушения из-за их способности обеспечивать высокий напор и производительность. Однако, если вам нужна высокая производительность при низком напоре, рассмотрите возможность использования перистальтических насосов.
После выбора насоса следующим шагом является выбор блочной станции. Обратите внимание на размер и вес станции, чтобы убедиться, что она подходит для места установки. Также учитывайте количество насосов, включенных в станцию, и их производительность. Блочные станции могут содержать от одного до нескольких насосов, в зависимости от ваших потребностей.
При установке блочной насосной станции убедитесь, что она находится в безопасном и легко доступном месте. Станция должна быть защищена от воздействия окружающей среды и иметь достаточно места для технического обслуживания и ремонта. Также важно, чтобы станция была подключена к источнику питания и системе водоснабжения в соответствии с требованиями производителя.
Важно! Все работы по выбору и установке блочной насосной станции должны выполняться в соответствии с местными нормами и правилами пожарной безопасности. Обязательно проконсультируйтесь со специалистом, если у вас есть сомнения в правильности выбора или установки станции.
Техническое обслуживание и ремонт блочных насосных станций
Для поддержания блочной насосной станции в рабочем состоянии и продления ее срока службы необходимо регулярно проводить техническое обслуживание и ремонт. Рекомендуется составлять график технического обслуживания и строго ему следовать.
Первый шаг в техническом обслуживании — это визуальный осмотр станции. Обратите внимание на состояние насосов, трубопроводов, электрических соединений и других компонентов. При обнаружении каких-либо неисправностей или аномалий, немедленно примите меры для их устранения.
Регулярно проверяйте уровень масла в насосах и при необходимости доливайте его. Также важно контролировать давление в системе и убедиться, что оно находится в пределах допустимых значений.
Для предотвращения поломок и обеспечения бесперебойной работы станции, проводите профилактические мероприятия, такие как чистка фильтров, проверка герметичности соединений и т.д.
При проведении ремонтных работ, убедитесь, что у вас есть все необходимые инструменты и запасные части. Если вы не уверены в своих навыках ремонта, обратитесь к квалифицированному специалисту.
После завершения технического обслуживания или ремонта, обязательно протестируйте станцию, чтобы убедиться в ее работоспособности и корректности работы всех компонентов.









