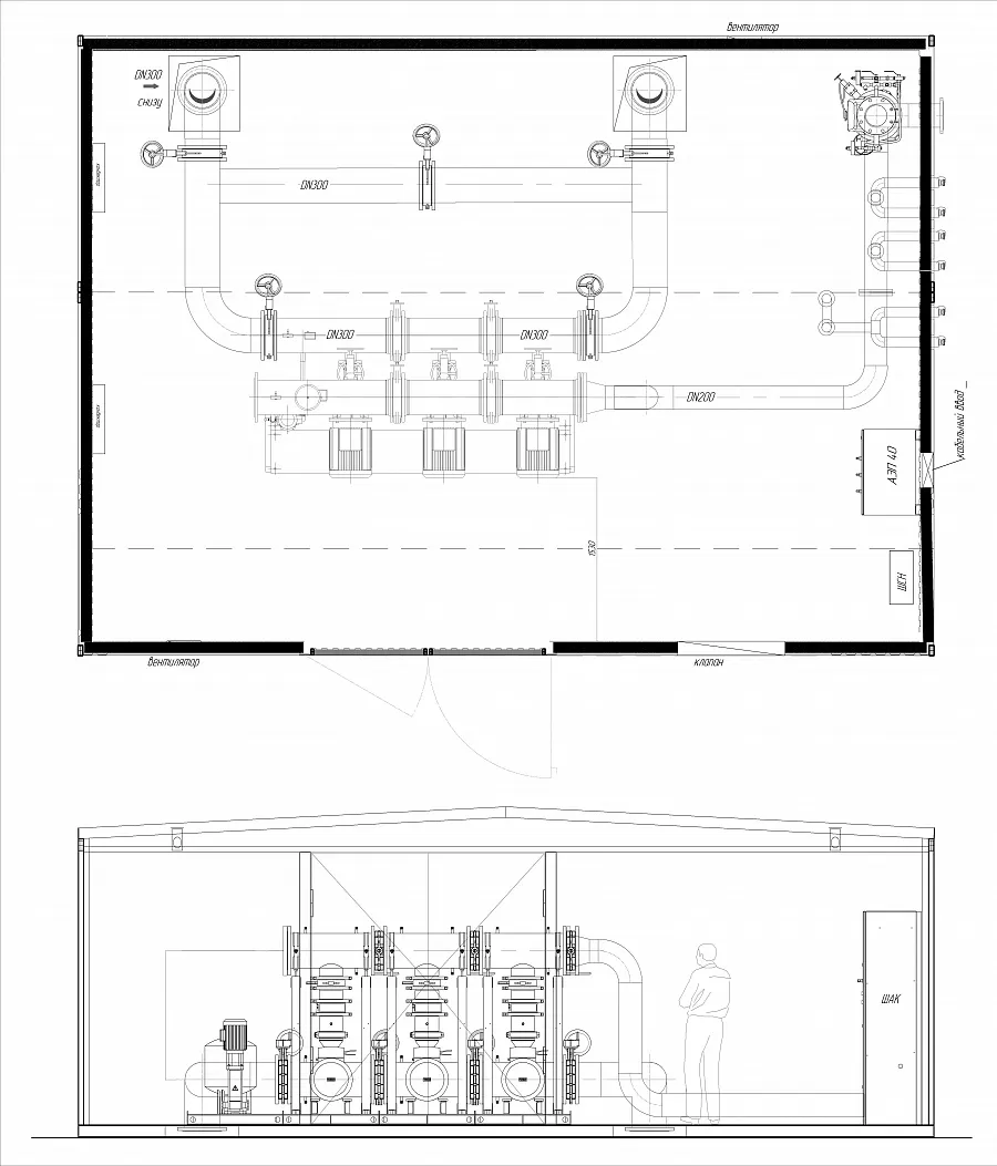
Блочные насосные станции (БНС) для пожаротушения — это готовые модульные установки, предназначенные для автоматического поддержания давления в системах противопожарного водоснабжения и подачи воды к спринклерным и дренчерным системам при возникновении пожара. Они представляют собой герметичный блок, в котором размещены насосы, трубопроводы, арматура, электрическое оборудование и система управления. Блочные насосные станции для пожаротушения монтируются в отдельном помещении или устанавливаются на улице под навесом и обеспечивают бесперебойную работу пожарной системы.
Такие станции широко применяются на промышленных объектах, складах, торговых центрах, высотных зданиях и других сооружениях, где требуется высокий уровень пожарной безопасности.
Особенности блочных насосных станций для пожаротушения
Блочные насосные станции отличаются от традиционных насосных установок рядом конструктивных и эксплуатационных особенностей:
- Модульность и готовность к монтажу: станция поставляется в собранном виде, что сокращает сроки установки и пусконаладочных работ.
- Компактность: занимает минимальное пространство и может устанавливаться в подвальных помещениях, технических блоках или на улице.
- Автоматизация: оснащена системой управления на базе контроллера, которая отслеживает давление в сети и автоматически включает насосы при его падении.
- Надёжность: включает резервный насос (рабочий + запасной), что обеспечивает бесперебойную работу даже при выходе одного из насосов из строя.
- Защита от внешних воздействий: корпус изготавливается из оцинкованной стали или нержавеющей стали, устойчив к коррозии, влаге и перепадам температур.
- Шумоизоляция: многие модели оснащены звукоизолирующими панелями, что снижает уровень шума при работе.
- Соответствие нормам: БНС проектируются в соответствии с требованиями СП 10.13130, СНиП и другим нормативным документам по пожарной безопасности.
- Гибкость конфигурации: можно подобрать станцию под нужный напор, производительность и количество насосов (от 1 до 4).

Критерии выбора насосной станции
При выборе блочной насосной станции для пожаротушения важно учитывать технические и эксплуатационные параметры, соответствующие требованиям объекта:
1. Производительность и напор
Определяются на основе гидравлического расчёта системы пожаротушения. Должны соответствовать расходу воды по нормам для конкретного типа здания (например, 40 л/с для склада).
2. Количество и тип насосов
Обычно устанавливают:
- Один рабочий + один резервный: базовый вариант для большинства объектов.
- Два рабочих + один резервный: для крупных и ответственных сооружений.
Насосы могут быть центробежными, консольными или вертикально-центробежными.
3. Материал корпуса и защита
Для агрессивной среды или уличной установки предпочтительны станции из нержавеющей стали с защитой IP54 и выше.
4. Система управления
Должна включать:
- Автоматический запуск по датчику давления.
- Индикацию аварийных ситуаций (перегрев, обрыв фаз, сухой ход).
- Возможность дистанционного контроля и интеграции с пожарной сигнализацией.
5. Наличие обвязки и арматуры
В комплекте должны быть: обратные клапаны, манометры, воздушные клапаны, вибровставки, запорная арматура.
6. Условия эксплуатации
Уточните минимальную и максимальную температуру окружающей среды, особенно если станция устанавливается на улице.
7. Производитель и сертификация
Выбирайте проверенных поставщиков с наличием пожарных сертификатов (Сертификат пожарной безопасности, СМ ЭКЗАМЕНА) и гарантийным обслуживанием.
Заключение
Блочная насосная станция для пожаротушения — это ключевой элемент системы противопожарной защиты, обеспечивающий своевременную и надёжную подачу воды. Её модульная конструкция, автоматизация и высокая надёжность делают БНС предпочтительным решением для современных объектов. Правильно подобранная станция соответствует нормам безопасности, легко встраивается в инженерную инфраструктуру и минимизирует риски при возникновении чрезвычайной ситуации. Инвестиции в качественную БНС — это инвестиции в безопасность людей и сохранность имущества.









